Mr.
Log on my space for more information...
Login
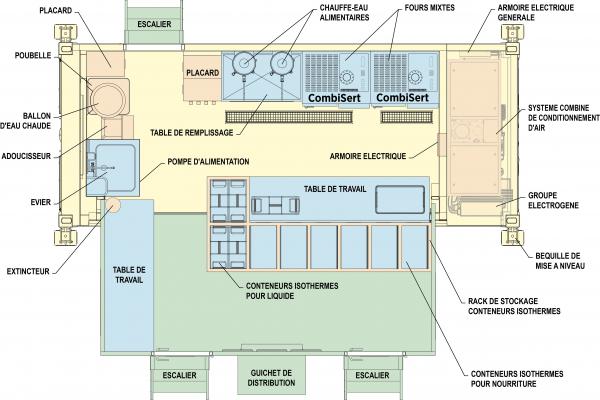
The mobile satellite kitchen MSK is designed to carry out the regeneration of ready meals (frozen, vacuumpacked or fresh) as well as the cooking in combisteamer ovens of various foods, the hot drinkable water production and the distribution in temperature of the meals to cater 250 to 500 people.
- EXPANDABLE AND AUTONOMOUS
- OPERATIONAL IN 30’
- SELECTION OF MODULES
- AIR CONDITIONING
- NEW BURNER

This 2-in-1 container can be easily expanded in 30 minutes and provides to the operators large work areas, an automatic ventilation/extraction system and the air conditioning for each area.
The MSK is fully autonomous thanks to an in-board 1500 RPM diesel electric generator and the new high efficiency SERT's multi liquid fuel burners.
The strong kitchen equipments made in stainless steel include two combi-steamer ovens CombiSert, two drinkable water boilers, 2 large work tables, one distribution rack equipped with a lot of food/liquid isothermal containers and a sink.
In addition, the MSK includes the water pump system, a softener, a water heater and several storage cabinets for a rational use.